Een huis dat voelt als thuiskomen – elke dag opnieuw

 

Er zijn van die plekken waar je binnenstapt en meteen weet: hier wil ik zijn. Waar ruimte, rust en sfeer naadloos in elkaar overvloeien. Waar de zon 's ochtends over de oprit valt, kinderen nog gewoon op straat spelen en de buurt voelt als een vertrouwde vriend.
Welkom aan de Dokter de Witstraat 6 – een woning die u niet alleen moet zien, maar vooral moet vóélen.

 

Hier woont u in het oude hart van Noord-Scharwoude, in een heerlijk rustige straat met bomen, brede stoepen en een gemoedelijke sfeer die u zelden nog vindt. De woning zelf? Ruim, verzorgd, verrassend ingedeeld en met een fijne flow van voor- tot achterdeur. Vijf (slaap)kamers, een riante woonkamer van bijna tien meter lang, een stijlvolle woonkeuken met openslaande deuren naar de tuin én een inpandige garage. En dat is nog maar het begin.

 

Of u nu een jong gezin bent dat op zoek is naar meer ruimte of simpelweg iemand die comfort en sfeer weet te waarderen: deze woning gaat u verrassen. Want dit is niet zomaar een huis. Dit is een plek waar herinneringen worden gemaakt, verjaardagen worden gevierd en de dagelijkse hectiek plaatsmaakt voor gemak, gezelligheid en rust.

 

Kom binnen

Stelt u zich eens voor: u komt thuis, parkeert voor de deur en pakt nog snel een stralend zonnetje mee op het bankje voor het huis. Even een momentje voor uzelf, terwijl de kinderen nog een rondje fietsen in de straat. Dan opent u de kenmerkende blauwe voordeur en… welkom thuis.

 

In de entree treft u de meterkast – praktisch en discreet weggewerkt – maar al snel trekt de open zichtlijn naar achteren uw aandacht. Wat een doorkijk, wat een diepte! U loopt verder de woonkamer in en bent verkocht. Maar eerst: even naar rechts, naar de hal die via een aparte deur vanuit de woonkamer te bereiken is. Hier vindt u het eerste toilet. En niet zomaar eentje: strak, stijlvol en picobello afgewerkt met sfeervolle tegels en een modern fonteintje. Ook de trap naar boven bevindt zich hier – maar geloof ons, u wilt nog even beneden blijven.

 

Woonkamer en keuken

Deze woonkamer is er eentje waar u ruimte krijgt. En dan bedoelen we écht ruimte: met een lengte van zo’n 10 meter (!) is het een genot voor elke interieurliefhebber. Een royale zithoek aan de voorzijde? Check. Een fijne leesstoel bij het raam? Kan gewoon. Speelhoek, werkplek, extra boekenkast? Alles past – en met gemak.

 

De ramen aan de voorzijde brengen royaal daglicht naar binnen, terwijl de stijlvolle vloer in warme houttint de ruimte optisch nóg groter maakt. En als de zon zich wat te enthousiast laat zien, zorgt de airco voor aangename verkoeling. Comfort, stijl en leefruimte smelten hier samen.

 

En dan die extra deur in de woonkamer… nieuwsgierig? Die leidt naar een diepe trapkast – ideaal voor al die praktische zaken zoals de stofzuiger, een voorraadje boodschappen of gewoon een flinke collectie gezelschapsspellen. Want in deze woning is zelfs aan opberggeluk gedacht.

 

Loopt u verder naar achteren, dan wacht daar de royale woonkeuken — en wat een fijne plek is dit. De keuken is slim verdeeld in twee zijden: zowel links als rechts beschikt u over opbergruimte, werkbladen en inbouwapparatuur. Alles binnen handbereik, zonder dat het druk oogt. En dankzij het minimalistische design met witte fronten en een donker werkblad blijft het geheel mooi rustig en strak.

 

Maar de absolute eyecatcher? Dat is de ruimte zélf. U kunt hier met gemak een grote houten eettafel kwijt waar u elke avond met het gezin kunt eten, verjaardagen kunt vieren of lange avonden spelletjes speelt met vrienden. Deze woonkeuken nodigt uit om te blijven.

 

De grote raampartijen en openslaande deuren naar de tuin maken het plaatje compleet. Op een zomerse dag zet u de deuren open en vloeit binnen moeiteloos over in buiten. De geur van versgebakken brood in de oven, kinderen die in de tuin spelen, en een glas wijn op het aanrecht. Dít is leven.

 

Tot slot nog zo’n fijne bonus: via de hal (die we zojuist al even benoemden) heeft u toegang tot de garage. Binnendoor, droog en veilig. Ideaal voor uw fiets, extra voorraad of als hobbyruimte. Deze ruimte komt later uitgebreid aan bod, maar weet alvast: dit is geen standaard garage, dit is een verlengstuk van uw wooncomfort.

 

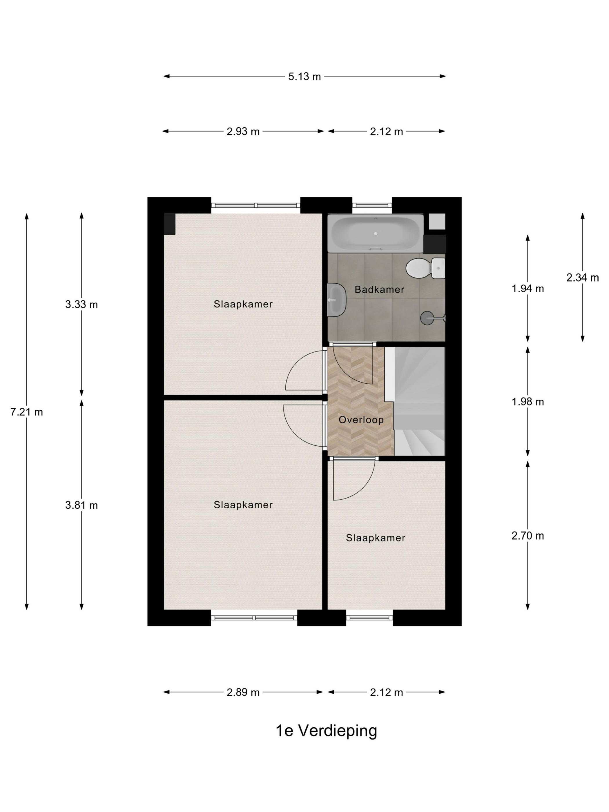
Eerste verdieping

Via de vaste trap komt u op de eerste verdieping, waar rust, ruimte en functionaliteit samenkomen. Met drie slaapkamers én een badkamer biedt deze verdieping alles wat u nodig hebt voor comfortabel gezinsleven. En zelfs nog een beetje meer.

 

Aan de voorzijde van de woning vindt u de masterbedroom: een riante ruimte die moeiteloos plek biedt aan een royaal tweepersoonsbed, twee nachtkastjes en een ladekast of kaptafel. De diepe groene wand geeft het geheel een warme, chique uitstraling en het grote raam zorgt voor een prettige lichtinval in de ochtend. En met de aanwezige airconditioning slaapt u hier ook hartje zomer als een roos.

 

Grenzend aan de master ligt een kleinere slaapkamer. Momenteel is deze in gebruik als walk-in-closet, en dat biedt een prachtig inkijkje in de mogelijkheden. Met een diepe kastenwand, een ladekast en nog voldoende loopruimte kan je hier je droom waarmaken. Stel je toch eens voor dat je hier wellicht een en-suite walk-in closet maakt, dát is pas hotelchique!
Maar ook als werkkamer, babykamer of leeshoek is dit een heerlijke, lichte plek met verrassend veel potentie.

 

Aan de achterzijde vindt u een tweede grote slaapkamer, eveneens royaal van opzet. Hier geniet u van het uitzicht op de achtertuin, een rustige sfeer en ruimte voor een bed, bureau en flinke kledingkast. Een ideale tienerkamer, logeerkamer of multifunctionele tweede hoofdslaapkamer.

 

Ook aan de achterzijde ligt de badkamer. Netjes onderhouden en voorzien van een ligbad, aparte douche, wastafel en toilet. De basis is goed, de ruimte is royaal – maar u voelt het waarschijnlijk zelf al: hier kunt u met relatief weinig moeite iets héél moois van maken. Denk bijvoorbeeld aan de stijl van het moderne toilet beneden, met donkere tegels, warme houtaccenten en een strak wastafelmeubel met dubbele waskommen en diepe lades. Uw eigen spa aan huis.

 

Tweede verdieping

Welkom op de bovenste verdieping van deze woning – een verrassend ruime etage die dankzij de twee forse dakkapellen aan weerszijden een zee aan licht en ruimte biedt. Wat een genot! Hier voelt het niet als ‘zolder’, maar als een volwaardige extra woonlaag.

 

Aan de achterzijde van de woning bevindt zich een sfeervolle slaapkamer die momenteel dienstdoet als kinderkamer. Drie grote ramen zorgen voor een prachtige lichtinval en een vrij uitzicht over de wijk. En extra fijn: deze kamer is voorzien van airconditioning. Dus of het nu hartje zomer of een koude winteravond is – het comfort is hier altijd op niveau. De praktische knieschotten bieden handige opbergruimte voor alles wat u uit het zicht, maar binnen handbereik wilt houden.

 

Aan de voorzijde van deze verdieping is een tweede kamer gerealiseerd, thans in gebruik als thuiskantoor. Hier kunt u in alle rust werken, studeren of creëren, met daglicht dat binnenvalt via het grote dakkapelraam. Ook deze kamer profiteert van de extra bergruimte achter de knieschotten én beschikt over een vaste kast aan de kopse kant van de kamer – perfect voor archief, voorraad of andere essentials.

 

Of u nu droomt van een extra slaapkamer, hobbyruimte, atelier of rustige werkplek: deze verdieping biedt de ruimte én de rust om het helemaal naar uw hand te zetten.

 

Garage

Wie slim wil opbergen, wil ruimte. En laat dat nu precies zijn wat u hier krijgt. Deze ruime garage met dubbele deuren aan de voorzijde is allesbehalve zomaar een berging. Hier treft u een robuuste, goed onderhouden ruimte waar fietsen, gereedschap, koffers en voorraad moeiteloos hun plek kunnen vinden.

 

Langs de wanden zijn op dit moment praktische stellingrekken en opbergkasten geplaatst – een goed voorbeeld van hoe u deze ruimte slim en overzichtelijk kunt indelen. Het plafond met houten balken geeft niet alleen sfeer, maar biedt ook extra mogelijkheden om spullen op te hangen of uit het zicht op te bergen.

 

We noemden het al eerder, de extra loopdeur die direct toegang geeft tot de woning, via de hal bij het toilet. Ideaal voor wanneer u in de garage de natte jassen en vieze schoenen wilt uittrekken, zodat u de woning verder netjes houdt. Ook een loopdeur richting de achtertuin ontbreekt niet.
En nog een plus: ook de aansluitingen voor wasmachine en droger bevinden zich hier.

 

Of u deze ruimte nu inzet als berging, hobbyruimte of misschien wel het stallen van uw oldtimer – u heeft hier een multifunctionele ruimte in handen die zich helemaal aanpast aan uw woonwensen.

 

Buitenleven

Zodra u de openslaande deuren in de keuken achter u sluit, stapt u een tuin in die voelt als een verlengstuk van uw leefruimte. De tuin is speels aangelegd en biedt verschillende terrassen, perfect om de zon (of juist de schaduw) op te zoeken gedurende de dag.

 

Het eerste terras ligt direct aan de woning en vormt een heerlijke plek voor een ochtendkoffie of een rustige lunch in de zon. Verderop in de tuin vindt u nog een ruim terras waar u een grote tuintafel of loungeset kwijt kunt – ideaal voor lange zomeravonden met vrienden of familie.

 

De achtertuin is grotendeels bestraat en onderhoudsvriendelijk, maar biedt toch voldoende ruimte voor wat groen, bloempotten of zelfs een klein speeltoestel. Dankzij de ligging geniet u hier volop van uw privacy. Er is een achterom aanwezig, wat de tuin ook praktisch maakt voor fietsen, vuilniscontainers of tuinbenodigdheden.

 

Berging

En vergeet de vrijstaande berging niet: een fijne plek voor de fietsen, tuingereedschap, barbecue of uw voorraad klapstoelen. Net als in de garage geldt ook hier: ruimte genoeg, mogelijkheden volop.

 

Tot slot

Wonen aan de Dokter de Witstraat betekent wonen in het oude hart van Noord-Scharwoude, met de karakteristieke kerktoren als stille getuige van het dorpsleven dat hier al generaties lang tot bloei komt. Zodra u de straat inloopt, valt het op hoe rustig het hier is. Kinderen spelen er nog gewoon op straat, buren groeten elkaar, en groen is hier méér dan een perk: het is een vanzelfsprekend decor van bomen, borders en grasstroken.

 

En dan die ligging: aan de voorzijde kijkt u uit op een brede stoep met volwassen bomen en een parkachtige groenstrook. De charme van een dorp, gecombineerd met alle voorzieningen binnen handbereik. Lopend bereikt u binnen enkele minuten het gezellige winkelhart van Noord-Scharwoude, met speciaalzaken, supermarkten en horecagelegenheden. Ook basisscholen, sportverenigingen en medische voorzieningen liggen op steenworp afstand – letterlijk.

 

De omgeving is overzichtelijk en verkeersluw, met voldoende parkeergelegenheid voor de deur. Ideaal voor gezinnen met jonge kinderen of rustzoekers die tóch graag het gemak van de stad binnen handbereik willen. En wie net iets verder kijkt, ontdekt dat u binnen een kwartier in Alkmaar bent en met de auto zó op de N245 richting Heerhugowaard of de kust.

Een dorp waar men nog oog heeft voor elkaar, waar het leven nét wat langzamer gaat – en waar u iedere dag wakker wordt met het idee: “Wat woon ik hier toch heerlijk.”

 

Interesse gewekt? U bent van harte welkom.

 

Kenmerken

  • Twee-onder-een-kapwoning met verrassend veel leefruimte
  • Gelegen in het oude dorpshart van Noord-Scharwoude
  • Royale woonkamer van ca. 10 meter lang met airconditioning
  • Stijlvolle woonkeuken met openslaande deuren naar de tuin
  • Toilet renovatie 2022
  • Totaal 5 (slaap)kamers verdeeld over 2 verdiepingen
  • 2 dakkapellen op de tweede verdieping 2022
  • Airco’s op elke verdieping 2021, alle ramen vervangen HR++ glas 2022
  • Binnendoor bereikbare, multifunctionele garage met wasmachine-aansluiting, Garagedeur vernieuwd 2021
  • Vrijstaande berging in de achtertuin
  • Zonnige, onderhoudsvriendelijke tuin met meerdere terrassen
  • Achterom aanwezig
  • Gelegen aan een rustige, groene straat met alle voorzieningen op loopafstand
  • Kindvriendelijke woonomgeving met scholen, winkels en sport dichtbij
  • Goede bereikbaarheid richting Alkmaar, Heerhugowaard en de kust
  • Parkeergelegenheid op eigen terrein
  • Energielabel B
  • Bouwjaar: 1994
  • Woonoppervlakte: ca. 123 m²
  • Overige inpandige ruimte: ca. 19 m²
  • Bruto inhoud woning: ca. 492 m³
  • Perceeloppervlakte: ca. 226 m²

Bekijk pand op Google Maps.